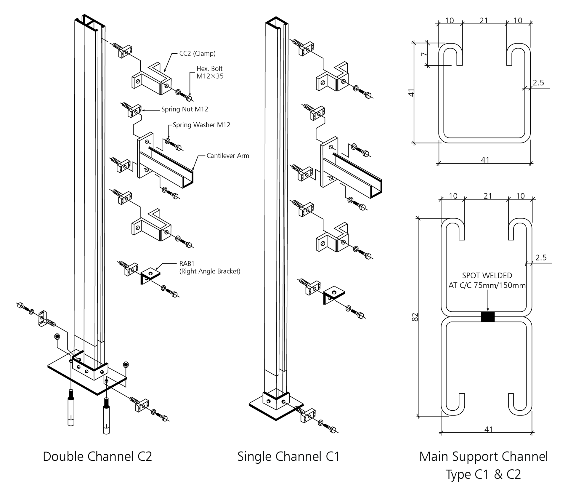
Cable Tray Support

Utility Channel Support Systems and Accessories are used for electrical and mechanical applications. The qualitative aspect of our support system is in the word of mouth.